Eine tabellarische Beschreibung der Spezifikationen des ROVER 12hp ⇒ finden Sie hier. | ||
| Spezifikationen des ROVER 12hp Motor Cab - Projekts von 1907/08 | ||
|---|---|---|
| Fahrgestell | ||
Das Fahrgestell des 12hp Cab-Modells basiert auf den gleichen Linien wie der weltberühmte Rover 16/20hp, das im Mai letzten Jahres die Tourist Trophy auf der Isle of Man gewonnen hat. Dies an sich ist schon eine gute Basis. Ein großer Wert für die Wartung des Cab-Modells ist die wichtige Tatsache, dass jedes Teil austauschbar ist. So kann im Falle einer Beschädigung oder des Ausfalls eines Teils dieses in wenigen Minuten ersetzt werden, so dass das Fahrzeug nie ungenutzt bleiben muß, sondern stets produktiv Gewinn einfahren kann, während das defekte Teil an die Werkstatt geschickt und repariert wird. Die Motorkupplung, das Getriebe usw., die in verschiedenen Abschnitten hergestellt werden, können "en bloc" abgenommen und ersetzt werden, während das defekte Teil überholt wird. Dies steht im Gegensatz zu dem System, bei dem das Fahrzeug bis zur Reparatur des defekten Teils in der Werkstatt verbleibt. Und es kann auch nicht passieren, dass man den Wagen um jeden Preis wieder auf die Straße bringen muss und folglich alle Reparaturen überstürzt vorantreibt. Dies entscheidet schließlich über die Lebensdauer des Fahrgestells. Denn je eiliger und lückenhafter die Arbeit ausgeführt wird, desto schneller wird das reparierte Teil wieder außer Betrieb gehen, und durch endloses "Flicken" dieser Art wird das Fahrgestell bald nur noch für den Schrotthaufen taugen, während es bei richtiger Behandlung zweifellos Jahre länger halten würde.Wie die Abbildung zeigt, ist das Fahrgestell für das Cab-Modell in Breite, Spur und Länge geändert. | ||
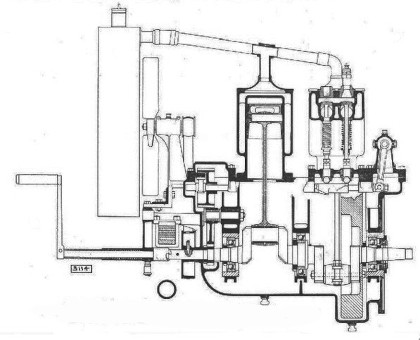
| Motor | ||
Der Motor des Cab-Modells besteht aus zwei separat gegossenen Zylindern mit 97 mm Bohrung. Der Kolben hat einen Hub von 110 mm. Die mechanisch betätigten Einlass- und Auslassventile sind auf einer Seite des Motors angeordnet. Jeder Zylinder kann in wenigen Minuten von seiner Grundplatte entfernt werden. Die Kurbelwelle wird aus dem Vollen gefräst, genau vermessen und dreht sich auf Kugellagern, so dass Gleichlauf und Laufruhe auf unbestimmte Zeit gewährleistet sind. Besonderes Augenmerk wird auf die im Motor verwendete Spezialnockenwelle gelegt, die neben dem üblichen Anheben der Ein- und Auslassventile so konstruiert ist, dass sie als Motor- oder Kompressionsbremse betrieben werden kann. Details zur genialen Vorrichtung finden Sie unter der Rubrik "Motorbremse". Das Schwungrad, das mehr wiegt als gewöhnlich und somit eine große Flexibilität beim Laufen bietet, ist ummantelt, dreht sich kontinuierlich in einem Ölbad und ist zwischen den Kurbelwellenlagern innerhalb der Kurbelkammer platziert. Dies ist eine große Verbesserung gegenüber dem normalerweise verwendeten außenliegenden Schwungrad. | ||
| Motorbremse | ||
Die Motorbremse ist eine ROVER-Spezialität von mehr als nur gewöhnlichem Wert. Die Nockenwelle mit ihren speziell geformten Nocken ist so angeordnet, dass sie mittels eines Pedals am Boden der Kabine betätigt wird und horizontal gleitet, wobei eine Feder sie in ihrer normalen Position hält. Beim Betätigen des Pedals wird ein völlig anderes System der Ventilbetätigung eingerichtet; der Hub beider Ventile wird zunächst verringert, und schließlich kommt die Kugel, die unter dem Einlassventilstößel liegt, auf einen kreisförmigen Abschnitt der Nockenhülse, und das Einlassventil bleibt geschlossen; zu diesem Zeitpunkt befindet sich die Kugel unter dem Auslassventilstößel auf dem Abschnitt der Nockenhülse mit zwei Vorsprüngen, so dass das Auslassventil oben geöffnet und am Ende jedes Kolbenhubs geschlossen wird. So wird bei jeder Abwärtsbewegung des Kolbens Luft durch das Auslassventil in den Zylinder gesaugt, beim Aufwärtshub des Kolbens komprimiert und dann ausgeblasen. Da das Einlassventil dauerhaft geschlossen ist, wird kein Benzin in die Brennkammern geleitet, so dass das Ansaugen, Verdichten und Ausstoßen von Luft nicht nur eine verzögernde Wirkung auf die Motorbewegungen hat, sondern auch dazu beiträgt, die Zylinderwände zu kühlen, wobei der Wasserkreislauf in der Zwischenzeit seine Arbeit fortsetzt. Die Bremswirkung dieser Vorrichtung ist sehr ausgeprägt - für alle gewöhnlichen Zwecke kann sie sogar ohne Verwendung der Reibungsbremsen genutzt werden. | ||
| Kupplung | ||
Die ROVER-Kupplung ist eine Ganzmetall-Scheibenkupplung, die kein Leder oder Fasergewebe enthält. Sie ist vom Schwungrad getrennt und besteht aus einer Kupplungsschale und schwimmenden und festen Scheiben, die kontinuierlich in einem Ölbad laufen. Durch das Drücken des Kupplungspedals lösen sich die Scheiben; vor dem Wiedereinkuppeln wird jedoch das Öl, das an den Scheibenoberflächen aufgenommen wird, allmählich weggedrückt, so dass die Aufnahme allmählich und nicht heftig erfolgt. Die Kupplung wurde speziell entwickelt, um solche Ruckbewegungen und Stöße zu vermeiden, die häufig bei Fahrzeugen mit Kupplungen anderer Art auftreten. Tatsächlich "springt" das ROVER Cab nie weg, sondern gleitet aus dem Stand und nimmt schnell Fahrt auf. | ||
| Getriebe | ||
| Es gibt drei Vorwärts- und einen Rückwärtsgang - die Vorwärtsgänge erlauben sechs, zwölf und siebzehn Meilen pro Stunde. Der Motor kann auf bis zu 1.100 Umdrehungen pro Minute beschleunigt werden, was eine Höchstgeschwindigkeit von 21 Meilen pro Stunde ermöglicht. Wie bei Motor und Kupplung sind die Zahnräder kugelgelagert und die Ritzel laufen in einem Ölbad. Am Getriebegehäuse ist eine Inspektionsplatte angebracht. Der dritte Gang stellt einen Direktantrieb von der Hauptwelle dar. | ||
| Kraftübertragung | ||
| Die Kraft wird durch eine Kardan- oder Propellerwelle über ein Differentialgetriebe an die Hinterachse übertragen. Das Kreuzgelenk ist außergewöhnlich stabil und verschleißfest. | ||
| Zündung | ||
| Als Zündung kommt ein Hochspannungssystem, das von zwei 25 Ah-Akkumulatoren, die über einen Schalter verbunden sind, versorgt wird, zum Einsatz. Die Akkumulatoren haben ausreichend Kapazität für eine Fahrtstrecke zwischen 600 und 800 Meilen. Der Kontaktgeber ist von höchster Zuverlässigkeit, während die Hochgspannungs-Spule von der allerbesten Marke ist. | ||
| Motorkühlung | ||
Das Wasserkreislaufsystem besteht aus einem Kühler mit Ober- und Untertank und zwei Reihen von Gitled-Rohren. Das Wasser fließt vom Boden des Heizkörpers in die Pumpe. Die Pumpe drückt mit einem zweiflügeligen Impeller das Wasser zum Wassermantel des Zylinders, von wo es vom Zylinderkopf über ein Rohr zum oberen Tank des Kühlers gelangt. Ein Lüfter, der von einem Riemen vom vorderen Ende der Kurbelwelle hinter dem Kühler angetrieben wird, unterstützt die Kühlung.Die Abbildung zeigt die Wasserumlauf-Pumpe. | ||
| Schmiersystem | ||
| Die verwendete Schmierung ist sowohl einfach als auch effektiv und wird als Spritzsystem bezeichnet. Auf der Seite des Motors befindet sich eine Kammer, in die durch Entfernen des Deckels, der von einer Flügelmutter gehalten wird, direkt aus einem Behälter Öl eingefüllt werden kann. Diese befindet sich direkt über dem Schwungrad, dessen Unterseite in einen Brunnen eintaucht, in den das Öl nach dem Ablaufen von den Zylinderwänden und den Pleuellagern zurückfließt. Das Schwungrad nimmt dieses Öl auf und wirft es in die Ölkammer, von der es über Rohre auf die Pleuelenden geleitet wird. Ein Teil des Öls läuft in Nuten und schmiert die Pleuellager. Der Rest wird auf die Zylinderwände gespritzt. Es läuft dann zurück zum Schwungrad und wird, wie erklärt, wieder umgewälzt. | ||
| Motorsteuerung | ||
| Die Steuerung von Gas und Zündung erfolgt über Kabel, die durch Spiralrohre zum Vergaserhebel bzw. Kontaktgeber führen. Diese Kabel sind an zwei gefrästen Scheiben oder Rollen befestigt, die in den Umfang des Lenkrads eingepasst sind. Federn am Vergaser und Kontaktgeber regeln Gas und Zündung, so dass die Tendenz besteht, das Gas geschlossen und die Zündung vollständig verzögert zu halten. Durch das Einspulen der Rollen wird die Drosselklappe geöffnet und der Zündzeitpunkt vorwärts bewegt. Ratschenzähne auf den Rollen ermöglichen es, jede gewünschte Position der Steuerung beizubehalten. Die Lenkung erfolgt durch eine Schnecke und ein Segment, die in einem öldichten Gehäuse eingeschlossen sind. Die Gangschaltung erfolgt über einen Hebel an der Fahrerseite. | ||
| Bremsen | ||
| Neben der bereits beschriebenen hocheffizienten Motorbremse verfügt der ROVER Cab über zwei leistungsstarke Reibungsbremsen. Die erste, die mit dem rechten Pedal betätigt wird, ist eine Bandbremse, die auf einer Trommel der Getriebewelle wirkt. Die zweite Bremse, die unter allen normalen Umständen nie betätigt werden darf - und daher als Festell- bzw. Notbremse bezeichnet werden kann - wird über einen Seitenhebel betätigt, der zwei Innenbacken innerhalb der Trommeln an den Hinterrädern spreizt. | ||
| Motor-, Kupplungs- und Getriebegehäuse | ||
Der gesamte Antriebsmechanismus des Wagens ist vollständig in einem Metallgehäuse untergebracht - von der Motorfront bis zum Ende des Getriebegehäuses. Das Motorgehäuse ist fest mit dem Kupplungsgehäuse verschraubt, das wiederum mit dem Getriebegehäuse verschraubt ist und so ein Ganzes bildet. Die Rover Company behauptet, dass sie damit die gesamten Funktionsteile des Autos umschließt und alle Teile vollständig schmiert, da die Gehäuse selbst als Ölbäder fungieren. Es kann kein Öl austreten, und, was ebenso wichtig ist, kann kein Staub, Schlamm oder Wasser an irgendeinen wichtigen Teil der Maschine gelangen. In ähnlicher Weise sind Differentialgetriebe und Hinterachse mit einer Abdeckung aus Metall versehen, die absolut staub- und wasserdicht ist, wobei das Differentialgehäuse an sich so konstruiert ist, dass die Schmierung für diesen Teil des Getriebes nicht häufiger als einmal in tausend Meilen erneuert werden muss. | ||
| Aufhängung | ||
Das Dreipunkt-Aufhängungssystem des ROVER Cab hat allen Nutzern die größte Zufriedenheit gebracht. Der hintere Teil der Karosserie ist an zwei Halbelliptik-Blattfedern an der Hinterachse aufgehängt. Die Federung des vorderen Teils des Wagens unterscheidet sich jedoch von der üblichen. Eine Querblattfeder spannt sich von einem Ende zum anderen der Vorderachse. Die Mitte der Feder ist in eine Halterung montiert, durch die ein starker Stahlstift aus dem vorderen Teil des Motorgehäuses geführt wird. Diese Halterung ist auf dem Stift drehbar. So wird deutlich, dass unabhängig von Sturz oder Ungleichmäßigkeiten der Fahrbahnoberfläche die Ausrichtung des mechanischen Teils der Konstruktion nie gestört wird, so dass kein Teil des Getriebes übermäßig belastet wird.Die Abbildung zeigt die prinzipielle Wirkweise der Vorderachs-Aufhängung an der Querblattfeder. | ||
| Vergaser | ||
Zum Einsatz kommt der sehr beliebte ROVER Automatikvergaser. Die Zuführung erfolgt durch Schwerkraft aus einem Benzintank, der sich unter dem Fahrersitz befindet. Der Vergaser befindet sich in einer bequem zugänglichen Position in der Nähe des Motors. Es gibt nur sehr wenige Teile, die ausgebaut werden müßten, und die gesamte Anordnung zeigt große Vorteile gegenüber vielen Geräten auf dem Markt. Seine Konstruktion ermöglicht es, die größtmögliche Leistung aus dem Motor zu ziehen. | ||
| Räder und Reifen | ||
| Es werden speziell gefertigte Artillerieräder für 750 x 85 mm Reifen verwendet. Die Bereifung der Hinterräder ist profiliert. Aus Erfahrung wissen wir, dass das geringe Gewicht des Wagens, kombiniert mit der Leichtgängigkeit der Kupplung, einen spürbaren Einfluss auf den Reifenverschleiß hat. Dieser geringere Verschleiß wird nach längerer Nutzung des Wagens sehr geschätzt. | ||
| Abmessungen | ||
| Der Radstand des ROVER Cab beträgt 8 ft 4 in / 2540 mm Die Spurweite beträgt vorne und hinten 4 ft 5 in / 1346 mm. Die Länge hinter dem Armaturenbrett mißt 7 ft 10 in / 2387 mm. Die Breite des Rahmens beträgt 3 ft / 914 mm. | ||
| A l l e A n g a b e n o h n e G e w ä h r |
© 2021-2026 by ROVER - Passion / Michael-Peter Börsig