Das Fahrgestell
Seitenansicht des Chassis des ROVER 16/20 hp, Modelljahr 1908
| Legende zu den Chassis - Details des ROVER 16/20 hp | |||
|---|---|---|---|
| A | Kurbelgehäuseunterteil< | Bottom of crank case | A |
| B | Schwungradgehäuse | Flywheel casing | B |
| C | Kupplungsgehäuse | Clutch case | C |
| D | Getriebegehäuse | Change speed gear case | D |
| E | Fußbremstrommel | Foot brake drum | E |
| F | Handbremstrommeln | Hand brake drums | F |
| G | Gelenkwellengehäuse | Propeller shaft casing | G |
| H | Hinterachsgehäuse | Rear axle casing | H |
| J | Seitenradius und Drehmomentstangen | Side radius and torque rods | J |
| K | Schubstreben, die die Vorderachse mit den Halterungen an der Seite des Kupplungsgehäuses verbinden. | Radius rods distancing front axle from brackets attached to side of the clutch case | K |
| L | Lenkungsschubstange | Main steering rod | L |
| M | Querlenker-Verbindungsstange | Cross steering connecting rod | M |
| N | Vorderachse | Front axle | N |
| P | Auspuffgehäuse | Exhaust boxes | P |
| Q | Gangschalthebel | Change speed lever | Q |
| R | Handbremshebel | Hand brake lever | R |
| S | Induktionsspule | Induction coil | S |
| T | Benzintank | Petrol tank | T |
| U | Kühler | Radiator | U |
| A l l e A n g a b e n o h n e G e w ä h r | |||


Motor und Getriebe

![]() | Rechte Seite unter der Motorhaube mit der Anordnung der Zündungsteile und der Wasserumwälzpumpe des 16/20 hp.
| |||||||||||||||||||||||||
![]() | Skizze zur Anordnung der Ein- und Auslasskrümmer und der Klappe in der Haubenfußleiste, die den Zugang zum Vergaser ermöglicht.
| ||||||||||||||||
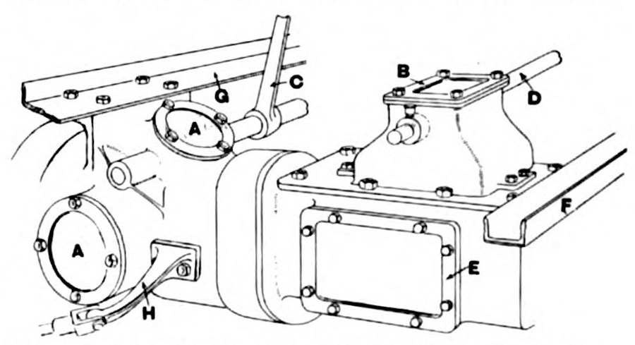
![]() | Skizze zur Lage der Inspektionsdeckel für Kupplung und Getriebe des ROVER 16/ 20 hp.
| ||||||||||||||||||||||||||||

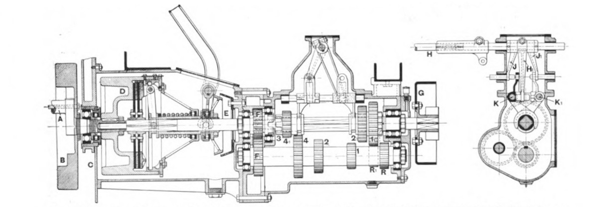
| Legende zum Schnitt durch Kupplung und Getriebe des ROVER 16/20 hp | |||
|---|---|---|---|
| A | Kurbelgehäuse | Crankshaft | A |
| B | Schwungrad | Flywheel | B |
| C | Trennung zwischen Kurbel- und Kupplungsgehäuse | Division plate between crank-case and clutch case | C |
| D | Lamellenkupplung | Plate clutch drum | D |
| E | Konusplatte zum Trennen der Kupplung vom Motorantrieb | Cone stop for bringing clutch to rest on disengagement from engine drive | E |
| F | Primärzahnrad im konstanten Eingriff mit F1 | Primary gear wheel in constant mesh with F1 | F |
| F1 | Angetriebenes Sekundärwellenzahnrad | Driven secondary shaft gear wheel | F1 |
| G | Bremstrommel hinter dem Getriebe Anmerkung: Für die Fußbremse | Brake-drum behind gear box | G |
| H | Welle zum Schalthebel | Change speed lever operating rod | H |
| H1 | Getriebe-Wählhebel | Selector lever | H1 |
| J,J1 | Verriegelungshebel | Locking levers | J,J1 |
| K,K1 | Wellen, auf denen die Wählhebel befestigt sind. | Shafts on which striking levers are fixed | K,K1 |
| L | Antriebszahnrad 1. Gang | Low speed driving gear wheel | L |
| 1 | Wellenzahnrad 1. Gang | Low speed driving wheel | 1 |
| 2 | Antriebszahnrad 2. Gang | Driving second speed gear wheel | 2 |
| 21 | Wellenzahnrad 2. Gang | Driven second speed gear wheel | 21 |
| 3 | Antriebsbacken des direkten dritten Gangs | Driving jaws of direct third speed gear | 3 |
| 4 | Wellenzahnrad des 4. Gangs und Direktantrieb | Driving gear on fourth speed and direct drive | 4 |
| 41 | Antriebszahlrad des 4. Gangs im Direktantrieb | Driven gear on fourth speed in direct drive | 41 |
| R | Wellenzahnrad des Rückwärtsgangs | Driving gear on reverse speed gear | 4 |
| R1 | Antriebszahlrad des Rückwärtsgangs | Driven gear on reverse speed gear | 41 |
| A l l e A n g a b e n o h n e G e w ä h r | |||
Frontansicht und Vorderachse
![]() |
Ansicht des Vorderwagens mit Vorderachse, Querfeder, Schubstangen und Lenkgestänge. |
© 2021-2026 by ROVER - Passion / Michael-Peter Börsig